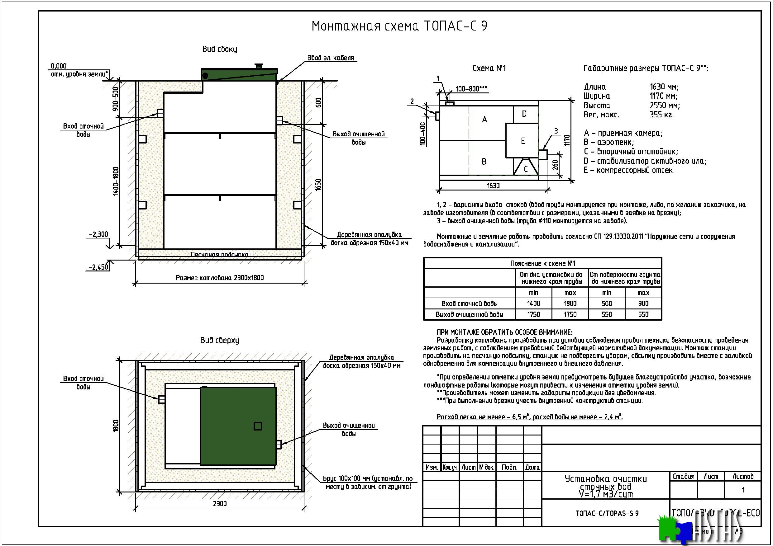
Производительность
1,7М3/СУТКИ
Количество пользователей
9ЧЕЛОВЕК
Глубина залегания трубы
40-80СМ
Объём залпового сброса
510Л
Потребляемая электроэнергия
1,5КВТ*СУТ
Вес
355КГ
Габариты
1,63 / 1,17 / 2,55Д/Ш/В
Производительность
1,7М3/СУТКИ
Количество пользователей
9ЧЕЛОВЕК
Глубина залегания трубы
40-80СМ
Объём залпового сброса
510Л
Потребляемая электроэнергия
1,5КВТ*СУТ
Вес
355КГ
Габариты
1,63 / 1,17 / 2,55Д/Ш/В
-
Описание
Описание установки «ТОПАС-С 9»
Группа компаний «ТОПОЛ-ЭКО» производит и продает установки для систем канализации загородного дома. Оборудование обеспечивает качество очистки бытовых стоков до 98 % в соответствии с нормами, установленными СанПиН. Компактные размеры «ТОПАС» позволяют легко разместить оборудование даже на небольшой площади. Корпус автономной канализации отличается повышенной прочностью и герметичностью, что позволяет избежать образования неприятных запахов. Кроме того, установка «ТОПАС-С 9» абсолютно безопасна для человека и окружающей среды. Очищенная вода не имеет цвета и запаха, может использоваться для полива не плодовоовощных культур и различных технических нужд. Системы канализации надежны в использовании и имеют длительный срок эксплуатации.
Автономная канализация «ТОПАС-С 9» - это:
- Высокое качество очистки стоков (до 98%);
- Легкий и прочный компактный корпус, выполненный из высококачественного полипропилена и снабженный ребрами жесткости;
- Простой монтаж в сжатые сроки, возможность монтажа в любое время года, в любых типах грунтов, даже при высоком уровне грунтовых вод;
- Полная экологическая безопасность, отсутствие неприятного запаха;
- Легкость обслуживания: нет необходимости в вызове ассенизационной машины, приобретении культур микроорганизмов и т.п.;
- На выходе - чистая техническая вода и стабилизированный ил;
- Надежность и долговечность, срок службы составляет более 50 лет.
Установки «ТОПАС» - это правильное решение при обустройстве канализации загородного дома.
-
Комментарии 0
Добавить комментарий
Описание установки «ТОПАС-С 9»
Группа компаний «ТОПОЛ-ЭКО» производит и продает установки для систем канализации загородного дома. Оборудование обеспечивает качество очистки бытовых стоков до 98 % в соответствии с нормами, установленными СанПиН. Компактные размеры «ТОПАС» позволяют легко разместить оборудование даже на небольшой площади. Корпус автономной канализации отличается повышенной прочностью и герметичностью, что позволяет избежать образования неприятных запахов. Кроме того, установка «ТОПАС-С 9» абсолютно безопасна для человека и окружающей среды. Очищенная вода не имеет цвета и запаха, может использоваться для полива не плодовоовощных культур и различных технических нужд. Системы канализации надежны в использовании и имеют длительный срок эксплуатации.
Автономная канализация «ТОПАС-С 9» - это:
- Высокое качество очистки стоков (до 98%);
- Легкий и прочный компактный корпус, выполненный из высококачественного полипропилена и снабженный ребрами жесткости;
- Простой монтаж в сжатые сроки, возможность монтажа в любое время года, в любых типах грунтов, даже при высоком уровне грунтовых вод;
- Полная экологическая безопасность, отсутствие неприятного запаха;
- Легкость обслуживания: нет необходимости в вызове ассенизационной машины, приобретении культур микроорганизмов и т.п.;
- На выходе - чистая техническая вода и стабилизированный ил;
- Надежность и долговечность, срок службы составляет более 50 лет.
Установки «ТОПАС» - это правильное решение при обустройстве канализации загородного дома.
:format(png):watermark(s.siteapi.org/0ea0e9abc53daf4.ru/watermark/joqb057fif40k4404sco84csc4gwo8,-1,-1,0,15,none)/0ea0e9abc53daf4.ru.s.siteapi.org/img/f573e9c08c94989143cc9c3e4b6f032ee477a7e5.png)